5 Sherwood Crescent
Market Drayton, TF9 1NHThe Space
Attractive ground floor retail unit extending to approximately 506 sqft (47.05 sqm) with 2-bedroom flat above.
At a glance
| Property Type | Leisure / Office / Residential / Retail |
| Tenure | To Let |
| Size | 1,012 sq ft |
| Rent | £11,500 per annum |
| Business Rates | £2.71 per annum Applicable for Small Rates Relief |
| Energy Performance Rating | This property has been graded as C (69) |
Prees
147 mins
Whitchurch (Shropshire)
161 mins
Wrenbury
176 mins
Wem
179 mins
Chesham
2220 mins
Amersham
2253 mins
Chalfont and Latimer
2285 mins
Reading
2296 mins
Key Points
- Attractive ground floor retail unit.
- Extending to approximately 506 sqft (47.05 sqm).
- 2 bedroom flat above.
- Versatile accommodation with large glazed display frontage.
- Prominent roadside location fronting Sherwood Crescent.
- Available To Let on a new Lease.
- Rent: £11,500 per annum exclusive.
Description
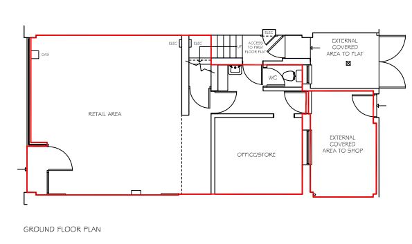
This ground floor retail unit forms part of a two storey mixed use shopping parade with commercial premises to the ground floor and residential dwellings above.
The retail accommodation extends in total to approx. 506 sqft having the benefit of a large glazed display frontage, rear office/store room, wc and wash hand basin.
Off the rear hallway is access to the first floor flat which boasts two bedrooms, an open plan kitchen/living room and bathroom.
In addition, the property benefits from a rear access with covered store and shared use of the communal yard and car parking area to the rear.
Available area
The accommodation comprises the following areas:
| Name | sq ft | sq m | Availability |
|---|---|---|---|
| Ground - Retail Sales | 401 | 37.25 | Available |
| Ground - Storage | 105 | 9.75 | Available |
| 1st - Residential Flat | 506 | 47.01 | Available |
| Total | 1,012 | 94.01 |
The Location
The property occupies a prominent roadside location fronting Sherwood Crescent within a popular residential area of Market Drayton, a popular north Shropshire market town bordering Staffordshire and Cheshire.
Market Drayton is the third largest market town in Shropshire with a population exceeding 12,000 and boasts excellent road networks, only 15 miles from the M6 and 20 miles from the M54, whilst approximately 21 miles north of Shrewsbury (via A53) and 18 miles north of Telford (via A529).